空室情報 vacancies information
A館
A館
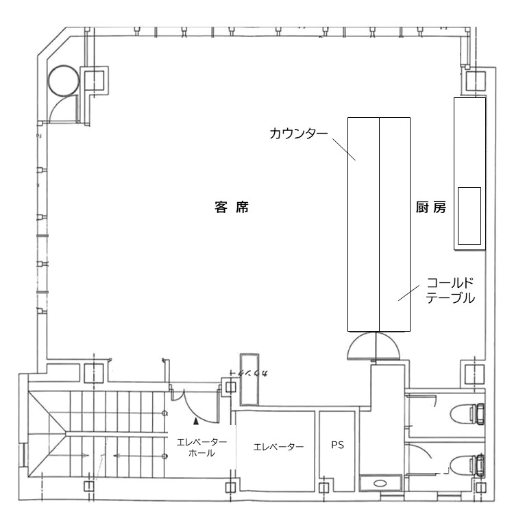
4階24坪
4階24坪
富山駅南口から徒歩5分
富山駅前市電通り沿い
賑わいの中心地点
広々使える角ビルです
◆富山駅からも丸の内からも目立つ好立地物件です
◆2方面全面ガラスの開放的な空間
◆図面と現況が異なる場合は現況を優先と致します
◆飲食店、他業種の方もご相談下さい(カラオケ不可)
◆別途設備譲渡費用【要相談】
富山駅前市電通り沿い
賑わいの中心地点
広々使える角ビルです
◆富山駅からも丸の内からも目立つ好立地物件です
◆2方面全面ガラスの開放的な空間
◆図面と現況が異なる場合は現況を優先と致します
◆飲食店、他業種の方もご相談下さい(カラオケ不可)
◆別途設備譲渡費用【要相談】
| 物件名 | A館 | 階数 | 7階建/4階 |
|---|---|---|---|
| 専有面積 | 24坪 | ||
| 所在地 | 富山市内幸町2-14 | ||
| 構造 | 鉄骨造陸屋根7階建て | ||
| 築年数 | 1978年8月竣工 | ||
| 家賃 | 216,000円(税別) | 共益費 | 10,000円(税別) |
| 駐車場 | 無(近隣に月極・コインパーキング等有り) | ||
| 町費 | 300円 | ||
| 敷金 | 4ヶ月 | 礼金 | 1ヶ月(税別) |
| 仲介料 | 1ヶ月(税別) | 火災保険 | 別途実費 |
| 入居可能日 | 3月予定 | ||
| 交通機関 | 市電停留所(新富町駅)160m 2分 | ||
| 周辺施設 | 富山駅 600m 富山市役所 500m 富山県庁 400m 北日本新聞社 300m |
||